PRODUCTOS

ZWCAD

Novedades 2026

Nuevo

Diseño Paramétrico

Agrega restricciones geométricas y de dimensión a las entidades para ajutar rápidamente su tamaño y forma, facilitando los cambios de diseño y la reutilización de dibujos

Nuevo

ZWCAD Toolbox

Accede a herramientas para capas, dimensiones y selección en un solo panel, con diseños personalizables para una experiencia de dibujos eficiente y personalizada.

Nuevo

Smart Match

Identifica automáticamente formas idénticas y admite la edición en lote para mejorar la eficiencia en la edición de dibujos, reduciendo significativamente el esfuerzo manual.

Nuevo

Similar Search

Busca bloques similares en archivos locales basándose en un gráfico especializado, simplificando la reutilización de datos históricos de bloques y ahorrando tiempo.

Nuevo

Smart Plot

Optimiza la interfaz para facilitar su uso y mejora la eficiencia de trazado con funciones como el trazado en lote entre archivos y la coincidencia automática del tamaño de papel.

Nuevo

Smart Dimension

Reconoce automáticamente los tipos de objetos y genera las dimensiones correspondientes, eliminando la necesidad de cambiar frecuentemente entre comandos.

Nuevo

Select Menu

Haz clic en los objetos en el área de dibujo para filtrar sseleccionar rápidamente gráficos con propiedades coincidentes, simplificando el proceso de selección.

Nuevo

Add Select

Crea objetos con los mismos atributos básicos que los existentes para evitar tareas repetitivas y mejorar la eficiencia en el dibujo.

Nuevo

Center Line/Center Mark

Crea rápidamente líneas centrales y marcas de centro, reduciendo el tiempo de dibujo manual y mejorando la precisión en las dimensiones

Nuevo

Dimension Merge

Combina múltiples dimensiones alineadas o en esquina de la misma medida en una sola acción para mejorar la consistencia y la usabilidad práctica.

Nuevo

Text Dodge

Ajusta automáticamente la posición del texto de las dimensiones para evitar superposiciones, mejorando la legibilidad y realizando la estética del dibujo.

Nuevo

Chain Select

Selecciona rápidamente líneas sueltas conectadas en lotes, mejorando la eficiencia de selección y reduciendo el tiempo dedicado a operaciones manuals

Nuevo

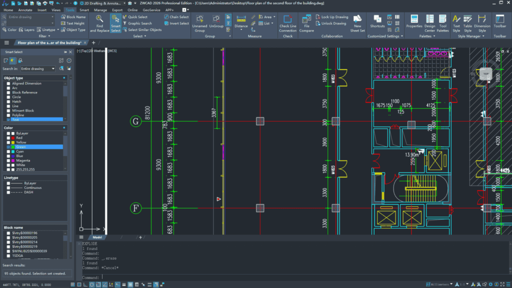
Smart Select

Filtra objetos en función múltiples condiciones, como colore, tipos y atributos, aumentando la eficiencia en la selección de objetos.

Nuevo

Find Panel

Cambia el diálogo de BÚSQUEDA al modo de panel para una mejor edición y eficiencia en la búsqueda, permitiendo la edición en tiempo real mientras se busca.

Nuevo

Clickable Command Line

Activa ramas de comandos haciendo clic en palabras clave en la línea de comandos, ofreciendo un método más conveniente para ejecutar comandos.